Замовити дзвінок
МКС 800-75-2 для ПАТ "Запоріжсталь" Бункерна Естакада
МКС 800-75-2 для ПАТ "Запоріжсталь" Бункерна Естакада

МКС 800-75-2 для ПАТ "Запоріжсталь" Бункерна Естакада

Компрессорс Інтернешнл проектує і виготовляє МКС вже більше 10 років, пропонуючи своїм замовникам повний супровід продукту від циклу ТЕО та проектування до виготовлення, введення в експлуатацію та навчання персоналу замовника роботі й обслуговуванню компресорних станцій.

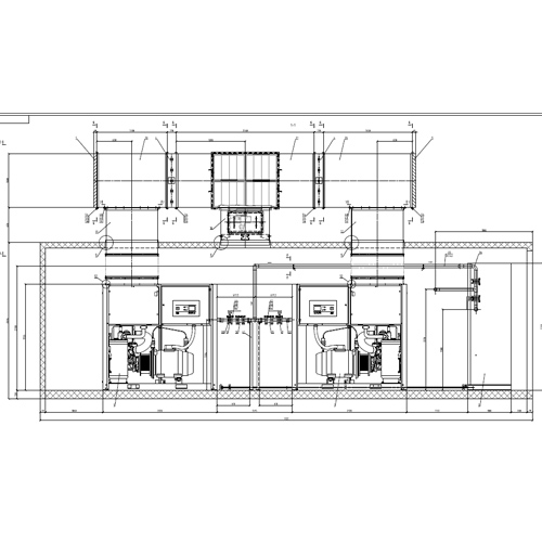
Компанія Компрессорс Інтернешнл цілком розділяє інноваційний підхід до рішень в області стисненого повітря, та задає нові стандарти в проектних інженерних рішеннях для промисловості України. Не стала винятком і реалізація проекту з постачання та впровадження компресорної станції на ПАТ "Запоріжсталь" Бункерна Естакада. Всі новаторські рішення були успішно застосовані та зібрані в Модульній Компресорній Станції МКС 800-75-2. Дане інженерне рішення не вимагає окремого приміщення для компресорної станції, МКС є мобільною, та може бути встановлена в будь-якому місці.

Протягом останніх десятиліть популярність набирає застосування гвинтових компресорів в складі МКС (Модульних Компресорних Станцій). Спочатку Блокові або Модульні Компресорні Станції застосовувалися в основному для нафтогазової або хімічних галузей, де особливо важлива мобільність і функціональність. Сьогодні економічна доцільність диктує свої умови, адже МКС вимагає 1,5-2 рази менше інвестицій в порівнянні зі зведенням капітальних будівель і відповідно - значно менший термін окупності. Вартість готового виробу, як правило легко оцінюється згідно Проектно-Кошторисною Документації, тим більше, що від моменту замовлення МКС до введення в експлуатацію, як правило, проходить не більше 3-4 місяців, що також вигідно відрізняє застосування МКС, особливо для нових технологічних ділянок і модернізації підрозділів існуючих виробничих підприємств.

Наименование станцииПродуктивность, м3/минДавление,
бар
Класс сжатого воздуха согласно ISO-8573-1Типоразмер станции
МКС-800-75/2135 - 8205-131.4.200130’’ (9156х2438х2896)


МКС мають таке стандартне оснащення:

• Утеплений металевий суцільнозварний корпус з технологічними отворами і вузлами для установки обладнання. Теплоізоляція станції - з негорючих матеріалів.

• Внутрішня обшивка: стіни, стеля - оцинкований профільований лист, підлога - настил із сталевого рифленого листа.

• Зовнішні металеві захисні вентиляційні решітки.

• Система автоматизованого регулювання подачі/відведення повітря, необхідного для охолодження та роботи компресорів, з електроприводами BELIMO або аналог (система рекуперації тепла).

• Система обігріву - електроконвектори з термоконтролером (підтримання необхідного температурного режиму в приміщенні станції в автоматичному режимі).

• Освітлення основне й аварійне.

• Система автоматичного порошкового пожежогасіння (здійснює функції виявлення і гасіння пожежі незалежно від зовнішніх джерел живлення і систем управління), на основі пристрою сигнально-пускового і модулів порошкового пожежогасіння МПП (р) «Буран-2,5», згідно НПБ 88-2001.

• Система ручного пожежогасіння - вогнегасники порошкові ОП - 4 (г).

• Силовий електрощит для живлення компресорів, власних потреб контейнера і управління системою вентиляції.

• Силова та слабкострумова електропроводка, виконана в металевих оцинкованих коробах.

• Система трубопроводів - з'єднувальні трубопроводи, трубопровідна арматура, байпасні Лінії осушувача та магістральних фільтрів, опори.

• Система відведення конденсату

• Система заземлення. У станції передбачені необхідні технологічні отвори і ворота для ремонту та обслуговування основного обладнання.

Бренди

Замовити дзвінок Каталог Online